Ufficio in vendita

Finale Ligure, ufficio via Calice
€ 128.000
4 locali 4 locali
100 Mq 100 Mq
1 bagno 1 bagno

Ufficio in vendita

Finale Ligure, ufficio via Calice

Descrizione annuncio

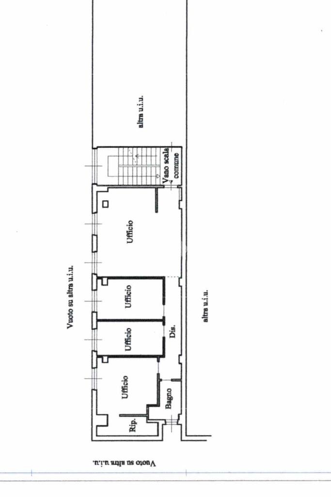
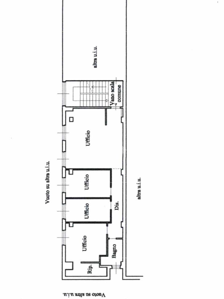
Ufficio 1 - in zona industriale a Finale Ligure, Perti, 100 mq, disposto su un unico livello al 1° piano senza ascensore di una palazzina in zona comoda per servizi e ampia possibilità di parcheggio. L'immobile è composto da 4 vani tutti con finestre che consentono agli spazi una buona luminosità e un bagno finestrato con doccia. Disponibile un' area assegnata esterna ad uso personale e una cantina finestrata. Le foto sono un rendering che offre l'idea del potenziale risultato finale

Mostra tutto

Nelle vicinanze

Trasporto pubblico Trasporto pubblico
stazione di Finale Ligure Marina
stazione di Finale Ligure Marina
2,2 Km
Trasporto pubblico
30 m
V. Delle Mura
V. Delle Mura
1,1 Km
Borgio Verezzi
Borgio Verezzi
2,4 Km
Scuole Scuole
Liceo A. Issel
920 m
Istituto Professionale Servizi Alberghieri Augusto Migliorini
1,5 Km
Scuole
1,5 Km
Scuole Medie
1,6 Km
Primaria di Finalborgo Emanuele Celesia
2,0 Km
Farmacia Farmacia
Farmacia del Borgo
1,1 Km
Parafarmacia COOP
1,7 Km
Farmacia della Marina
2,4 Km
Farmacia del Maestrale
2,6 Km
Ospedali Ospedali
Croce Verde Finalborgo
1,1 Km
Ospedale Ruffini
2,1 Km
Croce Bianca Finale Ligure
2,4 Km
Ospedali
2,8 Km
Supermercati Supermercati
Super Dí Supermercati
730 m
Crai
1,1 Km
Coop
1,7 Km
Supermercati
2,3 Km
Conad City
2,3 Km
Negozi Negozi
Pepe
1,0 Km
Negozi
1,0 Km
Secondo Federico
1,5 Km
Il tuo amico pane
2,3 Km
Taj Mahal Mini Market
2,3 Km
Bar Bar
Bar Testa
980 m
Konkok
1,0 Km
Torre Antica
1,3 Km
Aree Sporting Club
2,0 Km
Caffé Giovannacci
2,5 Km
Ristoranti Ristoranti
Osteria del Castel Gavone
510 m
Antica Osteria
550 m
Bastian Contrario
680 m
Il Castello
900 m
Invexendu
920 m
Mostra tutto

Caratteristiche

Rif.:
61185344
Piano:
1 di 3 (Piano basso)
Posti auto:
1
Condizionamento:
Assente
Ascensore:
No
Riscaldamento:
Autonomo
Mostra tutto
Prezzo Prezzo
€ 128.000
Rata mutuo Rata mutuo
€ 608 / mese
Proponi il tuo prezzoProponi il tuo prezzo

Altre caratteristiche

Descrizione dei locali
Bagno Con Finestra

Classe Energetica

Questo immobile è esente da classe energetica
Anno di costruzione:
1970
Riscaldamento:
Autonomo
Tipo impianto:
A radiatori
Tipo alimentazione:
Metano

Ti interessa visionare l'immobile?

Fissa un appuntamento  Fissa un appuntamento

Richiedi informazioni

Clicca su Leggi per aprire l'informativa
* Questi campi sono obbligatori

Calcola il tuo mutuo

Semplice e senza impegno
Anticipo

( % )
Mutuo

( % )

pochi semplici passi

inserisci i tuoi dati
Questionario completato
Grazie per aver richiesto un appuntamento senza impegno con un nostro Consulente del Credito e Assicurativo.

Hai inserito correttamente tutti i dati necessari e a breve riceverai una e-mail con un link da convalidare per inviare i tuoi dati.
Affiliato
Studio Finale Ligure Sas
Via Lorenzo De Raymondi, 27 17024 Finale Ligure (SV)

Il nostro staff


  • Salvatore Spoto
    Affiliato
Via Lorenzo De Raymondi, 27 17024 Finale Ligure (SV)
Zona: Finale Ligure
Mostra su mappa
Affiliato
Studio Finale Ligure Sas
Via Lorenzo De Raymondi, 27 17024 Finale Ligure (SV)

2026 Tecnocasa Franchising S.p.A. - P. IVA 08365160152 - Via Monte Bianco 60/A 20089 Rozzano (MI). Ogni agenzia ha un proprio titolare ed è autonoma. Privacy policy | Policy utilizzo | Cookie policy